Front entrance of building with flags flying to the side.

A Greener Future for the State of California

Front entrance of building with flags flying to the side.

A Greener Future for the State of California

Clifford L. Allenby Building

Workplace

One new building can plant a seed of change in a community. In Sacramento, the new Clifford L. Allenby Building for the California Department of General Services (DGS) is transforming the urban fabric of downtown and setting the bar high for sustainable design. California, long considered a role model for progressive environmental standards and green building practices, is living out its values with this high-performance office building. And where California leads, the rest of the country often follows.

Serving as the new home of the California Health and Human Services Agency and two of its departments, the Clifford L. Allenby Building reimagines the government office as a modern hybrid workplace, emphasizes employee health and wellness, and sets new benchmarks for energy and water conservation.

The  11-story building designed by ZGF and Lionakis employs a network of interrelated sustainability strategies to exceed the State’s ambitious energy and water targets, achieve zero-net energy, carbon neutrality, LEED® Platinum and Fitwel certifications, and a U.S. Resiliency Council Platinum Rating. As a result of working closely with an integrated team of engineers and MEP consultants, the project’s extremely efficient EUI places it in the top 1% of all U.S. office buildings. From the sunshades at the building envelope to the greywater system in the basement, every aspect has been designed to have a positive impact on people and the planet.

Location

Sacramento, CA

Square Feet

374,000

Completion date

2021

Project Component

Architecture Services & Portfolio

Interior Design & Space Planning

Graphic Design

Certifications

LEED Platinum

U.S. Resiliency Council Platinum Rating

Fitwel

EUI

24.8 kBTu/SF/yr

Exterior of building and its windows surrounded by trees

The building showcases new possibilities, pushing the envelope of high-performance design while establishing a new standard for future State buildings.

Sited at a prominent gateway to the California State Capitol, the building engages the Sacramento community via a vibrant, open and flowing ground floor and exterior public plaza.

main interior lobby space with people moving and sitting
Cafe area with people sitting and talking to each other

A lively public marketplace, with food and beverage service, creates indoor-outdoor connections to the exterior plaza and landscape. The building entry is distinguished by a double-height formal lobby that connects visually to the second floor.

Its proximity to Capitol Park reinforces the building’s connection to the heart of the region and provides access to green space, transit, and bike paths. In other words, users have plenty of choice in how they work, relax, and get around.

interior staircase and tables featuring people interacting with the environment

Common areas such as conference rooms and collaboration spaces are consolidated within a centralized amenity-rich zone called the "Mother Lode," with dynamic circulation strategies and connecting stairs that promote an active, healthy workplace.

The mix of open and private offices encourages state employees to work in new ways through highly flexible open floor plans that maximize daylight and views.

upper view of plaza staircase shows people walking

Custom environmental graphics designed by ZGF draw inspiration from the diversity and culture of California, as well as the strong influence of agriculture and industry in Sacramento—the “Farm to Fork Capitol”—to symbolize the three State agencies coming together under one roof.

EXCEEDING CALIFORNIA’S AMBITIOUS SUSTAINABILITY TARGETS

ZERO-NET ENERGY

In 2017, California committed to being zero-net energy for all new construction (and 50% of existing building area by 2025). The Clifford L. Allenby Building delivers on that promise, with dedicated offsite PV arrays contracted through the Sacramento Municipal Utility District’s (SMUD) SolarShares program.

CARBON NEUTRAL

On top of the operational carbon mitigated by being zero-net energy, the project team significantly reduced the building’s embodied carbon through creative design and structural innovations. For example, using the concrete LCA tool developed by ZGF, the project achieved a 15% reduction in embodied carbon of the entire structure and envelope through the concrete mix alone.

SAVING WATER

Efficient fixtures and non-potable water use via a grey-water system save more than 600,000 gallons in annual potable water—a 60% savings compared to the LEEDv4 baseline.

diagram of water system for the building and its components

CLEAN AIR

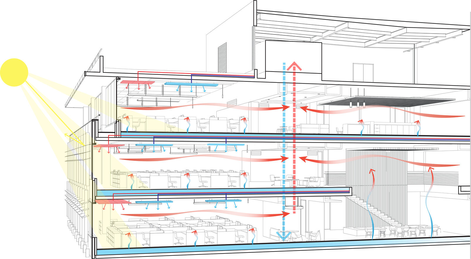
One hundred percent outside air is used for ventilation, cleaned by MERV 13 and electrostatic filters with particle control technology that maximizes interior air quality while reducing energy use and maintenance.

Four custom-built rooftop Air Handler Units (AHUs) supply pre-conditioned air to all spaces and include energy recovery features that transfer both sensible and latent energy from exhaust air to supply. An underfloor air distribution (UFAD) system — coupled with passive chilled sails and perimeter radiant heat — uses the natural buoyancy of air and one-way airflow to save energy, enhance thermal comfort and indoor air quality.

Demand control ventilation (DCV) utilizes sensors to reduce ventilation of unoccupied spaces. Radiant mechanical conditioning systems are also decoupled from the ventilation system, maximizing efficiency by providing heating and cooling only where needed.

HEALTHY WORKPLACE

Designed to achieve Fitwel certification, the Clifford L. Allenby Building emphasizes daylight, indoor-outdoor connections to nature, vertical connections to encourage movement and interaction between floors, healthy food service options, and red list-free interior materials. A fitness center and yoga studio encourage exercising onsite, along with ample bicycle parking and showers for commuters.

diagram of the cooling and heating components of the building
"It was a very integrated approach. Truly from concept to reality, the building looks exactly like the renderings."
Client, California Department of General Services
upper plaza space with people sitting around different tables
break room area with people leaning against counter space

The building structure and layout optimize daylight from the north and south, where direct sun is easier to control and take advantage of. External shading preserves views and indirect daylight during summer months without the need to deploy internal blinds. Electric light controls also respond to daylight levels, resulting in an estimated 57% energy savings from electric light dimming.

The project team spent significant time collaborating with the building users to design a space that reflects how they want to work and empowers them to have more control over their environment. The final design enhances government transparency, interdepartmental connections, and shared experiences.

From façade to finishes, everything in California State’s new building provides employees with a modern, healthy  workplace that sets a new standard for future state buildings and others to follow.

exterior shot of building along with other buildings and trees